嵯峨嵐山駅より徒歩スグ!!テナント物件募集
JR「嵯峨嵐山」駅より徒歩すぐ。
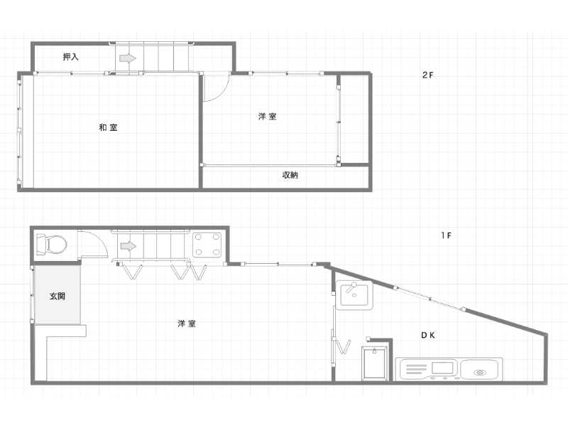
元、住宅の1棟テナント物件です!!
メインストリートより1本東の立地。
レンタル着物サロンや教室などにおすすめ。
また、SOHOも可能。
以前は住居として使用されており、比較的内部は綺麗です。
1F:25.92㎡ 2F:25.38㎡ 計:51.30㎡
その他、条件面や業種のご相談など、お気軽にキロハナ不動産までお問い合わせください!!
| 賃料 | 18万円(税別) |
| 専有面積 | 51.30㎡ |
| 礼金 | 1ヶ月 |
| 保証金 | 3ヶ月 |
| 契約期間 | 定期借家契約:5年 |
| 仲介手数料 | 1ヶ月 |
| 所在地 | 京都府京都市右京区嵯峨天龍寺車道町 |
| 交通 | JR嵯峨野線 嵯峨嵐山駅 徒歩1分 嵐山電鉄 嵯峨駅 徒歩3分 |
| 建物構造 | 木造 地上2階建 |
| 所在階 | 1階-2階 |
| 築年 | 1975年2月 |
| 取引態様 | 媒介 |
| 設備 | 電気、水道、ガス |
| 備考 | 保証会社加入要 火災保険加入要 |
| 情報修正日時 | 2026/03/30 |
| 情報更新予定日 | 2026/04/30 |
内覧予約やその他、詳細についてはお気軽にお問い合わせください。
TEL → 075-744-6972
